ABOUT Rosebush and barron lake estates

Barron Lake

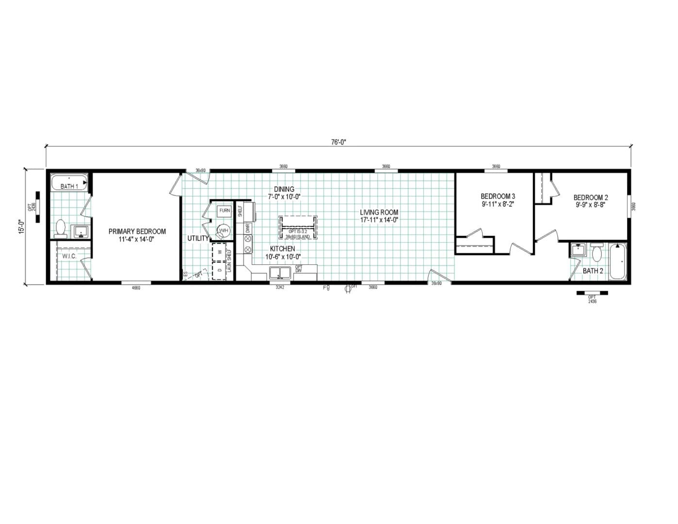
HOME FOR SALE

  • Year: 2026 Clayton Adrenaline
  • Single-Wide (16x76)
  • Purchase Price: $78,999
  • Bedrooms: 3
  • Bathrooms: 2
  • Square Feet: 1,165
  • Down Payment (5%): $3,949
  • Lot Rent: $399
  • Mortgage: $650

TOTAL MONTHLY PAYMENT

(Lot Rent + Mortgage): $1,049!

APPLY HERE

Send a Message

BLRB

This field is for validation purposes and should be left unchanged.